郑州海马公园房子装修:户型分割有讲究,怎样装才更合适?
创始人
2024-12-02 00:20:46
0

《郑州海马公园房子的户型分割与装修》

郑州海马公园的房子有着独特的布局特点。在装修时,若户型为方正的小户型,可采用开放式厨房与餐厅一体的设计,利用玻璃推拉门进行软隔断,既划分空间又不影响通透感。客厅可沿着长墙设置组合沙发,增加收纳功能。对于较大户型,可将卧室套房化,在卧室内设置独立的衣帽间,利用隔断墙划分出休息区与衣帽收纳区。对于横厅户型,可以把靠近窗户的一侧打造为休闲阅读区,通过地毯和矮柜来区分功能。巧妙的户型分割能让海马公园的房子在装修后空间利用更合理,居住体验更佳。


郑州海马公园装修 

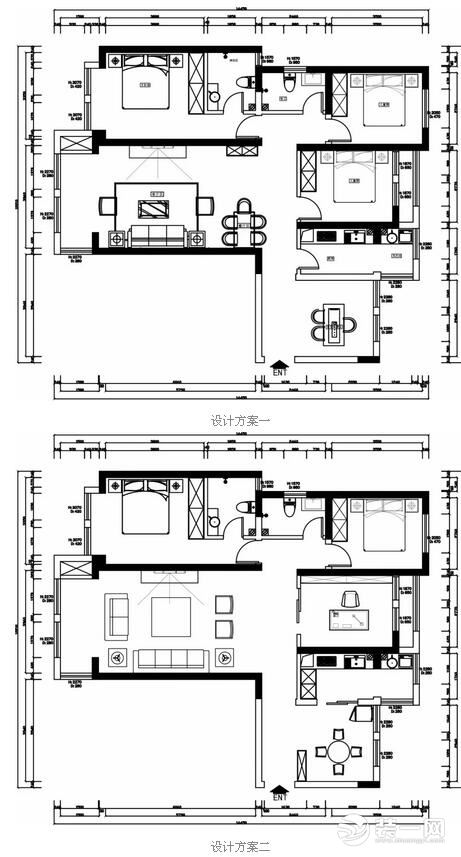
小区分析

海马公园是我公司重点研发小区,设计团队争分夺秒,经过考察,量房,设计等,提前完成对小区的研发。

郑州海马公园装修 

原始户型

户型优势

动静分区比较明显,活动区与休息区互不干扰

通透性比较好

通过恰当的分隔能够得到多样化的功能分区

户型缺点

走廊比较狭长,功能分割不是太理想


郑州海马公园装修 设计分析


空间分割更明显,通过后期地面划分使区域功能性划分更合适

顶面与地面相呼应使整个空间更协调

效果图展示

郑州海马公园装修

本方案在传统的中式上做了一些创新设计,将一些繁杂的元素进行简化处理,仅保留中式设计的精髓。

郑州海马公园装修

地面使用大理石材料,用波打线进行区域分割,通过颜色的变换,将区域分开,顶面运用不锈钢线条进行点缀。

郑州海马公园装修

房间运用时尚的灰色,用一些软装搭配起到点缀的作用,采用新中式家具,使整个空间更加时尚化。

郑州海马公园装修

使用传统的红色和柠檬黄进行点缀,营造整个客厅活泼的氛围,起到了画龙点睛的作用。

郑州海马公园装修 

卧室使用实木地板,以舒适为理念,整体设计比较素雅,橘色的使用调动了卧室的氛围。

设备新升级

中央空调系统

负担室内热湿负荷所用的介质有水系统、风系统和冷媒系统,此外空调还具备的除湿功能、空气调节功能,并且做到制冷不干燥。

新风系统

所用系统经过不断循环、置换,将室外新鲜空气引入室内,将室内的污浊空气排放到室外,不断地吐故纳新,使你的房间真正的呼吸起来。

智能家居系统

智能家居的设计以人为本,充分考虑人的需求,大门的智能锁、可视对讲机、夜视防水摄像机、自动窗帘,每一处设计都方便生活。

中央水处理

在家中增加前置过滤器,安装中央净水,软水,热水,是家中水质更健康,更安全,为身心健康增砖添瓦。

软装系统

窗帘、家具、配饰、软装全部为您操办,让您拎包即可入住。

以上就是郑州装修网为您带来的内容了,希望能够对您有所帮助哦!

相关内容

热门资讯

胡兵5千万豪宅曝光,简约大气又... 胡兵5千万豪宅曝光,引发众人惊叹。其豪宅整体风格简约大气又不失低调奢华。从外观上看,线条简洁流畅,没...
打造秀色可餐的快乐厨房:时尚装... 快乐厨房是一个充满魅力、打扮得秀色可餐的地方。一进入厨房,橱柜被漆成清新的淡蓝色,如同澄澈的天空,搭...
80后幸福小女人秀泰式温馨小家... 《80后幸福小女人的泰式温馨小家》80后的她,是一位幸福的小女人,精心打造出充满独特魅力的泰式风格小...
夏季装修宝典:14条施工妙计,... 《夏季装修:制造清凉意的施工宝典》夏季装修有诸多要点可让居室充满清凉意。首先,材料选择至关重要,像选...
铝合金阳台护栏价格与厂家?一文... 铝合金阳台护栏价格受到多种因素影响。其材质的优劣,如铝合金的纯度、是否为断桥铝等;护栏的工艺复杂程度...
郑州有哪些窗帘批发市场?其地址... 郑州有多个窗帘批发市场。其中比较知名的有郑州纺织大世界。它位于郑州市中原区西站路67号,这里的窗帘种...
智能马桶VS普通马桶:哪个好?... 智能马桶和普通马桶各有优劣。普通马桶结构简单,价格相对亲民,基本能满足日常排泄需求,安装和维修也较为...
华埔装饰朗悦公主府工地巡检:匠... 《华埔装饰朗悦公主府工地巡检:匠心与品质的见证》在华埔装饰朗悦公主府的工地巡检现场,处处彰显着匠心工...
家庭装修:5大主材价格多少算合... 家庭装修中耗费最大的就是门、地板、橱柜、卫具及灯具,这被称为装修中的五大主材。这些主材的价格直接影响...
新奇特灯具:独特设计,为居室增... 新奇特灯具为居室带来独特的魅力,宛如点亮生活的魔法精灵。造型各异的新奇特灯具,或似绽放的花朵,或像飘...