郑州德鲁熊装饰 | 碧桂园160平三居室简约风实景案例
创始人
2024-12-01 11:33:13
0

郑州德鲁熊装饰在碧桂园小区打造的160平简约三居室实景案例令人眼前一亮。整体空间布局开阔合理,以简约风格为主导。客厅采用浅色系为主色调,搭配简洁的家具,营造出舒适且大气的氛围。背景墙没有过多繁杂的装饰,却凸显出简约的美感。卧室注重温馨感的营造,柔软的床品与柔和的灯光相得益彰。厨房设计注重实用性,橱柜的收纳空间充足。卫生间干湿分离,干净整洁。每一处细节都体现出德鲁熊装饰对于简约风格的精准把握以及对空间利用的巧妙构思。


女孩子喜欢什么?自然是漂亮的小裙子、小鞋子还有数不清的包包、化妆品啦,本期郑州德鲁熊装饰公司为我们带来的碧桂园小区160平现代简约风装修案例中,就有一个女生超爱的衣帽间,一起来看看吧!

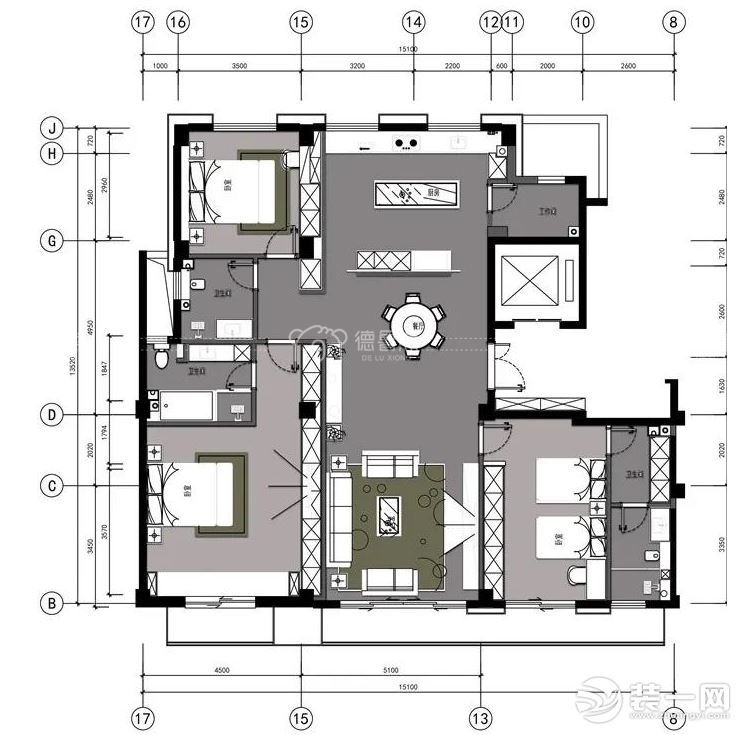
户型结构

郑州德鲁熊装饰碧桂园小区160平简约三居室实景案例图

客厅

现代人工作生活繁忙,现代简约装修可以让人的身心很快放松下来,相比于奢华的装修它的魅力在于用简单的家具和造型安抚人的心灵。现代简约装修注重的是房屋实用性,极简之美也体现其中。

郑州德鲁熊装饰碧桂园小区160平简约三居室实景案例图

卧室

卧室空间也是非常的简洁为主,木质地板、灰色的床头让人看起来更具有安稳感,让空间充满了时尚的科技感。素雅简洁的床单布置,也使得空间轻松闲适。

郑州德鲁熊装饰碧桂园小区160平简约三居室实景案例图

餐厅

开放式西厨,简约的壁画,四人长餐桌,简约大方的餐边高柜,敞亮的空间,简单大气。

郑州德鲁熊装饰碧桂园小区160平简约三居室实景案例图

室内

简洁的沙发墙,布置一张棕色布艺沙发,搭配一席地毯、摆一张小巧的圆茶几,让简单的空间也显得端庄大气。大理石的背景墙,看起来格外有感觉。

郑州德鲁熊装饰碧桂园小区160平简约三居室实景案例图

衣帽间

大大的衣帽间简直就是所有女生的心头爱,大大的衣帽间让你再也不用担心自己的衣服无处安放,还有配饰收纳盒,下面可以放哪个鞋子,真的是将空间最大化呢!

郑州德鲁熊装饰碧桂园小区160平简约三居室实景案例图

以上就是本期碧桂园小区160平简约三居室实景案例的全部内容了,心动的朋友们赶快行动起来吧!

相关内容

热门资讯

胡兵5千万豪宅曝光,简约大气又... 胡兵5千万豪宅曝光,引发众人惊叹。其豪宅整体风格简约大气又不失低调奢华。从外观上看,线条简洁流畅,没...
打造秀色可餐的快乐厨房:时尚装... 快乐厨房是一个充满魅力、打扮得秀色可餐的地方。一进入厨房,橱柜被漆成清新的淡蓝色,如同澄澈的天空,搭...
80后幸福小女人秀泰式温馨小家... 《80后幸福小女人的泰式温馨小家》80后的她,是一位幸福的小女人,精心打造出充满独特魅力的泰式风格小...
夏季装修宝典:14条施工妙计,... 《夏季装修:制造清凉意的施工宝典》夏季装修有诸多要点可让居室充满清凉意。首先,材料选择至关重要,像选...
铝合金阳台护栏价格与厂家?一文... 铝合金阳台护栏价格受到多种因素影响。其材质的优劣,如铝合金的纯度、是否为断桥铝等;护栏的工艺复杂程度...
郑州有哪些窗帘批发市场?其地址... 郑州有多个窗帘批发市场。其中比较知名的有郑州纺织大世界。它位于郑州市中原区西站路67号,这里的窗帘种...
智能马桶VS普通马桶:哪个好?... 智能马桶和普通马桶各有优劣。普通马桶结构简单,价格相对亲民,基本能满足日常排泄需求,安装和维修也较为...
华埔装饰朗悦公主府工地巡检:匠... 《华埔装饰朗悦公主府工地巡检:匠心与品质的见证》在华埔装饰朗悦公主府的工地巡检现场,处处彰显着匠心工...
家庭装修:5大主材价格多少算合... 家庭装修中耗费最大的就是门、地板、橱柜、卫具及灯具,这被称为装修中的五大主材。这些主材的价格直接影响...
新奇特灯具:独特设计,为居室增... 新奇特灯具为居室带来独特的魅力,宛如点亮生活的魔法精灵。造型各异的新奇特灯具,或似绽放的花朵,或像飘...