郑州宜家家居初现容貌,内部装修设计规划曝光,快来先睹为快!
创始人
2024-11-30 03:27:56
0

《郑州宜家家居初现容貌与内部装修设计规划》

郑州宜家家居如今已容貌初现,其外观轮廓在城市中逐渐清晰起来。从整体看,建筑规模宏大且独具特色,散发着现代简约的气息。走进内部,装修设计规划也被曝光,极具人性化与创意性。空间布局合理有序,各个区域分工明确。展示区注重产品的陈列效果,将家居用品巧妙组合,营造出一个个温馨舒适的家居场景,无论是客厅、卧室还是厨房区域,都仿佛在向人们诉说着理想生活的模样,让顾客能直观感受到宜家产品在家居搭配中的无限可能。


郑州宜家家居

▲宜家效果图

从公示的信息上看出,宜家位于北三环北、长兴路东,用地面积48300平方米,总建筑面积为62845.25㎡,建筑高度≤18米,容积率1.29,绿地率17.49%,共设置780个停车位。

郑州宜家家居

此为宜家的总平面图,可以看到商场整体设置两个出入口:顾客出入口和顾客车辆和货车出入口,分别位于王寨街和长兴路上。整个商场设有地上和地下两个停车场,整体机动车停车位共780个,其中小型客车的停车位761个(含充电机动车停车位116个)。

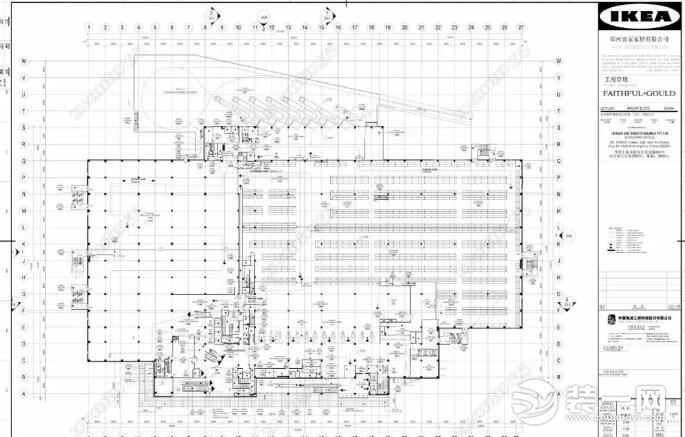
郑州宜家家居

此为宜家二层平面图

郑州宜家家居

此为宜家商场的立面图,从图上可以看出,宜家商场总共3层。

郑州宜家家居

此为宜家商场的剖面图

根据近日公布的惠济区2018年的重点工作显示,宜家将于今年年底前主体完工,预计明年大家就可以进入宜家嗨嗨的买买买了!

相关内容

热门资讯

胡兵5千万豪宅曝光,简约大气又... 胡兵5千万豪宅曝光,引发众人惊叹。其豪宅整体风格简约大气又不失低调奢华。从外观上看,线条简洁流畅,没...
打造秀色可餐的快乐厨房:时尚装... 快乐厨房是一个充满魅力、打扮得秀色可餐的地方。一进入厨房,橱柜被漆成清新的淡蓝色,如同澄澈的天空,搭...
80后幸福小女人秀泰式温馨小家... 《80后幸福小女人的泰式温馨小家》80后的她,是一位幸福的小女人,精心打造出充满独特魅力的泰式风格小...
夏季装修宝典:14条施工妙计,... 《夏季装修:制造清凉意的施工宝典》夏季装修有诸多要点可让居室充满清凉意。首先,材料选择至关重要,像选...
郑州有哪些窗帘批发市场?其地址... 郑州有多个窗帘批发市场。其中比较知名的有郑州纺织大世界。它位于郑州市中原区西站路67号,这里的窗帘种...
智能马桶VS普通马桶:哪个好?... 智能马桶和普通马桶各有优劣。普通马桶结构简单,价格相对亲民,基本能满足日常排泄需求,安装和维修也较为...
华埔装饰朗悦公主府工地巡检:匠... 《华埔装饰朗悦公主府工地巡检:匠心与品质的见证》在华埔装饰朗悦公主府的工地巡检现场,处处彰显着匠心工...
家庭装修:5大主材价格多少算合... 家庭装修中耗费最大的就是门、地板、橱柜、卫具及灯具,这被称为装修中的五大主材。这些主材的价格直接影响...
新奇特灯具:独特设计,为居室增... 新奇特灯具为居室带来独特的魅力,宛如点亮生活的魔法精灵。造型各异的新奇特灯具,或似绽放的花朵,或像飘...
京城顶级SPA会所:奢华装修,... 京城顶级SPA会所的奢华装修令人惊叹。踏入会所,首先映入眼帘的是挑高的大厅,穹顶之上垂落着璀璨的水晶...